- 配電機器トップ
- 油入変圧器
- モールド変圧器
- その他変圧器
-
コンデンサ・
リアクトル - 計器用変成器
-
モータ
コントロールセンタ - 高圧遮断器
-
保護継電器・
避雷器 -
TIPS
認定盤 - 生産終了機種一覧
NEW
2026トップランナー変圧器
モールド変圧器 TOSMOLD™ NFシリーズ
地球環境のために、変圧器は新しいステージへ
Transformer for a Sustainable Future
2026トップランナー変圧器
モールド変圧器 TOSMOLD™ NFシリーズとは
さらなる省エネの実現を目指し、トップランナー変圧器は「2026トップランナー変圧器」へと前進しました。
脱炭素時代のスタンダードへ。東芝の確かな技術力で、エネルギーの未来を支えます。
静音・高効率・信頼。持続可能な社会の実現に向けて、地球にやさしい変圧器を。
私たち東芝は、カーボンニュートラル社会実現に向けた道を切り拓きます。
特 長
未来に誇れる製品をお客様のもとへ。
環境
旧JIS品(JIS C 4306:1999)と比較して、エネルギー消費効率が大幅に向上しました。
CO₂の削減で、カーボンニュートラル社会の発展に寄与します。
更新時期を超過した約30年前の変圧器を「2026トップランナー変圧器」に更新することで、省エネルギー性能が大幅に進化し、大きな省エネ効果を発揮します。
また年間CO₂排出量も抑制が可能であり、カーボンニュートラル社会の実現に大きく貢献します。
三相50Hz 300kVAの場合(等価負荷率40%時)
エネルギー消費効率の比較

CO₂年間排出量の比較

技術
高性能コア材や高精度巻線技術を採用することで、電力損失を低減させ電気料金の削減に貢献します。また、優れた静音性能により私たちの生活を静かに支えます。
高効率化の実現により、年間の電気料金を削減でき、長期間の使用において大幅なコストメリットを発揮します。
また、効率の向上は鉄心の磁束密度や巻線の発熱低減にもつながり、運転音の低減=静音性能にも貢献。病院や学校、ホテル・商業施設など、静けさが求められる場所でも快適にご利用いただけます。
三相50Hz 300kVAの場合
負荷率における年間電気料金の比較

情報
すべてのトップランナー変圧器には”情報提供ラベル”を標準付属しております。
QRコードを読み取り、現場で情報を入手し、保守・点検の効率化やデジタル化、複数拠点・チームでの情報共有を推進します。
ラベルに記載されたQRコードをスマートフォンやタブレットで読み取るだけで、試験成績書・図面・取扱説明書などの各種情報をその場で取得することができます。
これにより、保守・点検・更新作業時に必要な情報を現場ですぐに確認できるため、業務の効率化とミスの防止に貢献。紙資料の管理負担を軽減し、設備情報のデジタル化を強力にサポートします。
QRコード®により製品情報をその場で取得可能
●変圧器1 台に対し1 枚を付属いたします。
●「情報提供ラベル」は、収納盤などの見やすい所に貼って御利用ください

情報提供ラベル
同梱される「情報提供ラベル」を製品の側に貼付け、
タブレット端末やスマートフォンからQRコードを読み取るだけで下記製品情報をダウンロードいただけます。
●外形図
●試験成績書
●取扱説明書
※QRコードは株式会社デンソーウェーブの登録商標です

信頼性
地震などの突発的な災害時にも安定した稼働を確保するため、厳しい耐震検証を実施しています。
優れた対地震性能と端子変位抑制により、日常と変わらない安心を提供します。
静的な加速度に対する強度や変位(ゆがみ)を評価することで、設置時の安定性や構造信頼性を確認しています。
また、実地の地震波を再現して加振する加震試験では、動的な加速度に対する強度や端子部の変位量を検証し、機器としての実用信頼性をより高い次元で担保しています。
これらの試験により、当社製品は、災害発生時においても電力供給を途絶えさせない高い信頼性と安全性を提供します。
優れた耐震性能による信頼性向上
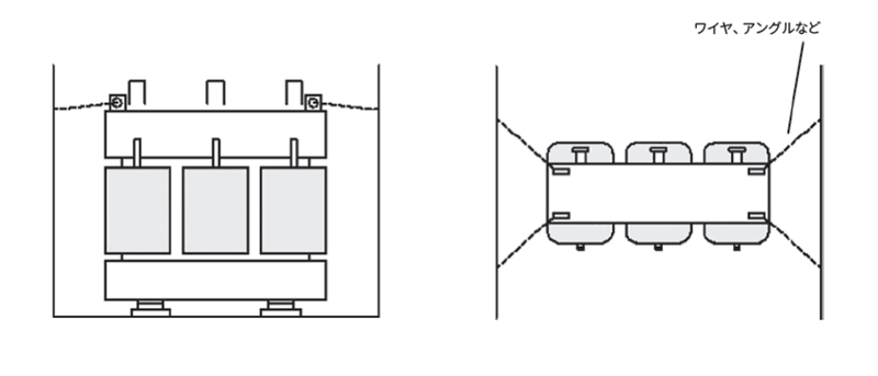
転倒試験
変圧器の転倒試験により、静的な加速度の強度と変位を検証しています。

加震試験
実地震波による加震試験により、動的な加速度の強度と変位を検証しています。

採用メリット
耐震性能の向上
従来耐震強度は、変圧器の本体と固定部の強度を建築物の指針に応じ設定していましたが、地震の揺れによる接続部の変位が配線に及ぼす影響を鑑み、端子部の変位量を設定しました。
適用の区分は下表の建築設備耐震設計・施行指針を参照ください。適用機種は本カタログ掲載の単相500kVA以下、三相1000kVA以下の仕様品です。
防振ゴム付きは弊社支給品のみに限ります。
なお変圧器本体は震度2.0で設計されていますので、防振ゴム付で震度1.5, 2.0を指定される場合の変位については、弊社へお問い合わせください。防振装置に搭載される変圧器は、装置の変位が加算されますので、変位を抑制するためには防振ゴムを取り付けない、変圧器上部に設けた座をい、ロープ掛け、又はダンパーを設けて所要の変位に抑制されることを推奨します。
局部震度法による建築設備機器の設計用標準震度

出展:建築設備耐震設計・施工指針(2014年版)
変圧器の変位

変位抑制の例

東芝2026トップランナー変圧器の特長
東芝2026トップランナー変圧器は、耐震性能向上のため、構造物の剛性を高めています。2011年3月11日の東北地方太平洋沖地震の、栃木県芳賀町で観測された地震波を印加し、部品の脱落や構造物の破壊、及び塑性変形などの損傷がないことを確認しています。
※変圧器の設置状況や、実際の地震波形などの差異により、すべての地震波に対する性能を保証するものではありません。
実績・効果
高圧配電用変圧器は省エネ法特定機器に指定され、適用対象品は特性のカタログ表示と目標年度までに区分ごとの目標基準値を上回らないことを義務付けられました。ご使用になる事業者にはトップランナー変圧器の採用を推奨されています。

トップランナー制度
トップランナー方式とは省エネ法における省エネ基準値の策定方式です。
特定機器対象商品で最も省エネ性能の高い製品を基準として、
省エネ基準値を定め省エネ化を推進する制度です。
基準値をクリアした変圧器を「トップランナー変圧器」と呼称します。
さらに、進化した2026年省エネ基準に適合した変圧器を「2026トップランナー変圧器」と呼びます。

2026トップランナー変圧器の対象範囲
JISで規定された標準仕様のみでなく電圧変更等の非標準品も対象です。特殊用途や市場の使用割合が極端に小さい機種は除外されています。

エネルギー消費効率(2026年度目標基準値)

グリーン購入法について
国等が物品を購入する場合、環境性能の高い製品の採用推進としてトップランナー変圧器が特定調達品目に指定されています。
2026トップランナー変圧器はグリーン購入法に適合した製品です。
用途一覧
工場
- 受変電設備(難燃性)
- 他
ビル・マンション・
商業施設
- 受変電設備(難燃性)
- 他
物流倉庫
- 受変電設備(難燃性)
- 他
浄水場
- 受変電設備(難燃性)
- 他
発電所・受配電設備
- 受変電設備(難燃性)
- 他
再生可能エネルギー
- 受変電設備(難燃性)
- 他
交通インフラ
- 受変電設備(難燃性)
- 他
その他
- 受変電設備(難燃性)
- 他
2026トップランナー変圧器 モールド変圧器 TOSMOLD™ NFシリーズ 仕様
| 項目 | 仕様 |
|---|---|
| 適用規格 | 標準仕様:JIS C 4306:2024 準標準仕様:JEM 1521:2024 |
| 相数 | 単相 三相 |
| 定格容量 | kVA |
| 周波数 | 50Hz 60Hz |
| 結線 | 単三 Yy0 Yd1 Dd0 Dyn11 その他( ) |
| 定格一次電圧 | F6750/R6600/F6450/F6300/6150V(50kVA超過) R6600/F6300/6000V(50kVA以下) F3375/R3300/F3225/F3150/3075V(50kVA超過) R3300/F3150/3000V(50kVA以下) その他( ) |
| 定格二次電圧 | 210-105V(単相) 210V 420V(中性点付) 415V(中性点付) 440V(中性点付) 420/242V 415/240V 440/254V その他( V) |
| 混触防止板 | なし あり(専用端子) |
| オプション付属品 | 防振ゴム 平車輪(低圧側に向かって、移動方向 前後(標準) 左右) ダイヤル温度計(警報接触点付、最高温度指針付) 測温抵抗体(Pt、0℃ー100Ω) 基礎ボルト ケース ケーブル引込/一次(上部(標準) 下部)、二次(上部(標準) 下部) ※ケーブル仕様:一次( ㎟、 本/相) 二次( ㎟、 本/相) ケース塗色 5Y7/1(マンセル記号) その他( ) |
| その他ご指定 | 出荷タップ( V)※ご指定のない場合は定格タップにて出荷いたします。 |



